SBT Engineering Services Limited utilise the latest 3D CAD software, Solidworks Professional 2016. Our design department has well over 30 years collective experience designing a wide variety of items, ranging from steel structures, walkways, gantries, pipework, machine guards right through to complex machines and drive assemblies.
These designs also cover a wide variety of materials from plastics & alloys to iron, steel, stainless, GRP and composites. All customer specific designs are also available to the end user in a format compliant with their viewing software
Pipework
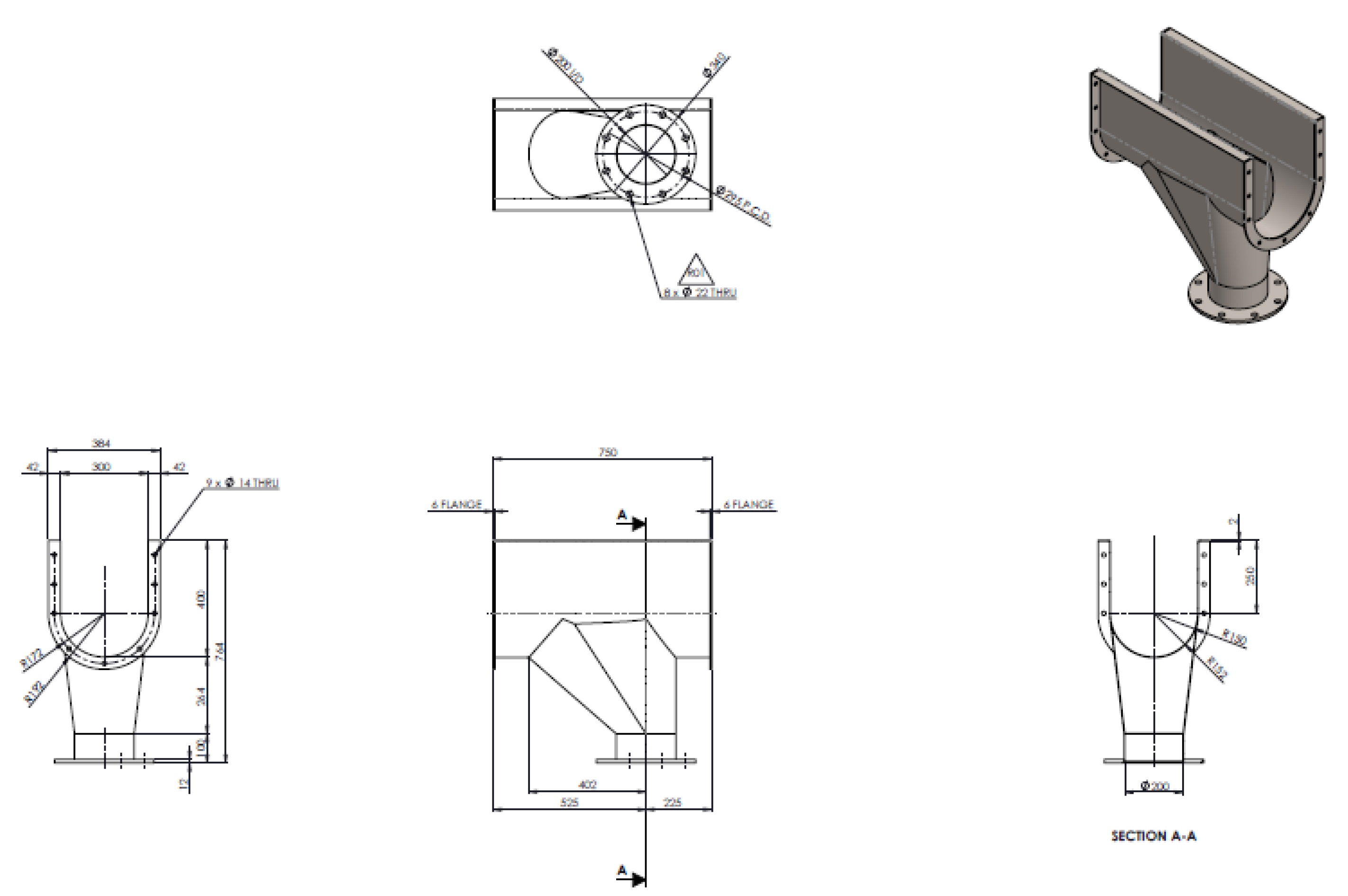
Pipe Spool
Stone Trap
Pipework
Actuator
Motor Stand
Steel Support
Pipe Support

UVDB Registration No. 83357